4 bedroom House
Rosemeade Court, Huddersfield, HD5
Offers Over
£300,000
SOLD STC
This beautifully presented detached four-bedroom property boasts breathtaking, far-reaching views and stylish modern decor throughout. The open-plan layout on the middle floor creates a spacious and inviting social hub - perfect for bringing the family together. Conveniently located close to local amenities, this home effortlessly combines contemporary living with practical accessibility.
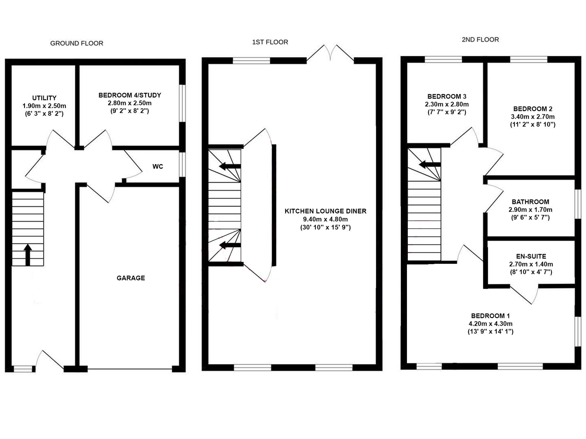
Entrance Hall
A bright and generously proportioned entrance hall sets the tone for the rest of the home, featuring stylish grey wood-effect flooring and a modern composite front door. This inviting space provides access to a range of ground floor amenities, including a spacious under-stairs storage cupboard, a convenient utility room, a downstairs WC, the integral garage and a versatile room ideal as a home office or fourth bedroom.
Open-Plan Kitchen/Diner/Living Room
30' 10" x 15' 9" (9.40m x 4.80m)
This beautifully presented open-plan kitchen and living space is located on the middle floor and combines functionality with contemporary style. The kitchen area features sleek white cabinetry complemented by oak-effect countertops and stylish grey wood-effect flooring throughout. Integrated appliances include a gas hob, double oven, fridge freezer, and dishwasher - offering both convenience and modern efficiency. Glass patio doors lead directly from the kitchen to a decked outdoor area, ideal for al fresco dining and entertaining. Centrally located within the space is ample room for a dining table and chairs, seamlessly connecting the kitchen to the inviting living area. The living room boasts fresh white decor enhanced by a soft pale grey accent wall. A Juliette balcony floods the room with natural light and offers far-reaching views, adding a sense of openness and tranquility to this airy, sociable space.
Downstairs WC
5' 7" x 3' 7" (1.70m x 1.10m)
A well-appointed downstairs WC featuring crisp white walls and a modern, minimalist design. Includes a WC and a sleek wash basin set into a vanity unit with built-in storage-ideal for keeping essentials neatly tucked away.
Utility Room
6' 3" x 8' 2" (1.90m x 2.50m)
A practical and well-appointed utility room featuring white cabinetry paired with oak-effect countertops, combining style and functionality. There is ample space to accommodate both a washing machine and dryer, making household chores more convenient while keeping the rest of the house clutter-free.
Bathroom
9' 6" x 5' 7" (2.90m x 1.70m)
A bright and stylish bathroom located on the top floor, designed with both comfort and functionality in mind. The space is finished with elegant light grey wall tiles and durable tile-effect vinyl flooring, creating a sleek, modern look. It features a full-size bath with a separate overhead shower - ideal for both quick mornings and relaxing soaks. Additional features include a chrome heated towel rail and a modern vanity unit with integrated sink, offering practical storage while maintaining a clean, streamlined appearance.
Bedroom 1
13' 9" x 14' 1" (4.20m x 4.30m)
Situated on the top floor at the front of the property, this spacious king-size bedroom enjoys spectacular, far-reaching views across the valley, with the iconic Emley Moor mast visible in the distance. Bathed in natural light, the room is decorated in crisp white tones, enhancing its bright and airy feel. It also benefits from a generous built-in storage cupboard and a private en-suite, creating a peaceful and well-appointed retreat.
En-Suite
8' 10" x 4' 7" (2.70m x 1.40m)
A sleek and stylish en-suite in the principle bedroom, featuring contemporary finishes and a well-planned layout. It includes a walk-in shower with glass door, a sink with a vanity unit providing storage and a WC. Light, neutral tones and quality fixtures create a fresh, modern feel-offering both comfort and convenience in a private setting.
Bedroom 2
11' 2" x 8' 10" (3.40m x 2.70m)
Located at the rear of the property, this generously sized double bedroom is decorated in fresh white tones, creating a calm and inviting atmosphere. Large windows flood the space with natural light, enhancing the airy feel and offering pleasant views of the surroundings. A versatile room, ideal for use as a guest bedroom, child’s room or stylish home office.
Bedroom 3
7' 7" x 9' 2" (2.30m x 2.80m)
Positioned at the rear of the property, this well-proportioned single bedroom is currently used as a child’s room but offers excellent versatility as it would also make an ideal home office, nursery, or even a walk-in wardrobe/dressing room - easily adaptable to suit your lifestyle needs.
Bedroom 4/ Office
9' 2" x 8' 2" (2.80m x 2.50m)
Featuring stylish wood-effect flooring and crisp white walls, this room benefits from a window that fills the space with natural light. Currently set up as a home office, it offers excellent potential to be used as a fourth bedroom, study or playroom, perfectly adaptable to your individual needs.
Integral Garage
The property also benefits from a generously sized integral garage, perfect for secure parking, additional storage or even conversion into a home gym or workshop, subject to requirements.
Spacious Open-Plan Kitchen/Diner/Living Space
Fully Enclosed Rear Garden
Integral Garage
Stunning Far-Reaching Views
4 Bedrooms
Detached Property
Rear Garden
The southwest-facing rear garden is a tranquil outdoor retreat, featuring a decking area perfect for alfresco dining and relaxing with ample room for seating and a cooking station. Steps lead down to a well-maintained grass lawn, providing additional space for play or gardening. Conveniently, there is useful storage space beneath the decking to keep outdoor equipment and essentials neatly tucked away.
Driveway: 2 spaces - The driveway offers convenient off-street parking for two vehicles side by side, ensuring easy access and ample space for residents and guests.
Garage: 1 space
Interested?
01484 629 629
Book a mortgage appointment today.
Home & Manor’s whole-of-market mortgage brokers are independent, working closely with all UK lenders. Access to the whole market gives you the best chance of securing a competitive mortgage rate or life insurance policy product. In a changing market, specialists can provide you with the confidence you’re making the best mortgage choice.
How much is your property worth?
Our estate agents can provide you with a realistic and reliable valuation for your property. We’ll assess its location, condition, and potential when providing a trustworthy valuation. Books yours today.
Book a valuation
